





















VARIANTA 1.
🏡 Mega Park Residence 9 – Comuna Berceni / Vidra, Ilfov
SUPER COMPLEX REZIDENȚIAL – MEGA PARK
Descoperă un nou mod de a trăi! Un ansamblu rezidențial modern, cu 340 de case individuale, amplasat într-o zonă liniștită, cu acces rapid către București și toate facilitățile de care ai nevoie zi de zi.
📍 Locație & Accesibilitate
Situat în Comuna Berceni – Ilfov, în apropierea localității Vidra
Cartier închis și securizat, cu acces controlat și vecini selectați
Străzi asfaltate și iluminate public
Stație STB chiar în complex – legătură directă cu orașul
Spații comerciale în interiorul ansamblului pentru confortul zilnic
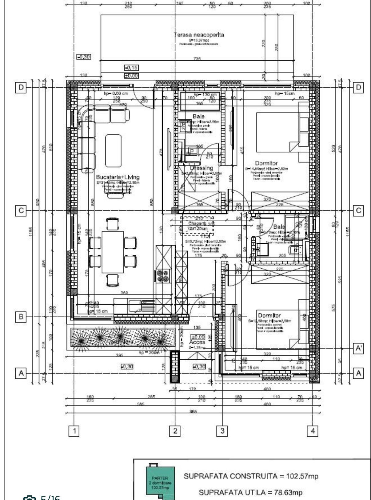
🏠 Detalii Locuință
Suprafață utilă: 78 mp
Teren: între 327 mp și 487 mp
Preț: de la 107.500 € + TVA până la 116.500 € + TVA
🏗️ Compartimentare inteligentă
Living spațios și luminos – cu acces direct la grădină
Bucătărie open-space, modernă și funcțională
2 Dormitoare – ideale pentru familie sau birou
2 Băi – finisaje moderne și calitate superioară
Hol de acces bine organizat, pentru eficiență maximă
🌿 Avantaje și Beneficii
Cartier privat, cu infrastructură completă (utilități, asfalt, iluminat)
Curte generoasă – ideală pentru grădină, terasă sau piscină
4 locuri de parcare incluse în curte
Construcție nouă, realizată din materiale de calitate
Design modern, funcțional și eficient energetic
VARIANTA 2.
VILA cu un etaj .136 000 EURO+tva
🏡 Locuință ideală pentru familie – confort, spațiu și acces rapid către oraș
Această casă este perfectă pentru o familie care își dorește confort, funcționalitate și un stil de viață relaxat, aproape de oraș, dar departe de aglomerație.
Detalii imobil:
Parter: living generos, bucătărie separată, baie și terasă Etaj: 3 dormitoare și 2 băi complet mobilate și utilate
Structură și finisaje:
Construcție solidă din cărămidă Porotherm pe cadre de beton armat
Pereți interiori din cărămidă Porotherm
Izolație exterioară de 15 cm pentru eficiență energetică sporită
Acoperiș Bilka din tablă de 0.5 mm
Placă de beton turnată peste ultimul nivel
Izolație acoperiș din polistiren de 10 cm
Ferestre Salamander (gri exterior / alb interior) cu geam tripan
Fațadă decorativă din travertin
Încălzire prin pardoseală în toată locuința
Băi complet utilate, finisaje moderne și durabile
Ușă de intrare metalică 2200 mm x 960 mm
Utilități și amenajări exterioare:
Alei pietonale, terasă și parcare pavate cu pavele Symmetrica
Sistem de aspersoare și gazon în curte
Spațiu verde ideal pentru relaxare, joacă sau grădinărit
Avantaje ale zonei:
Străzi asfaltate în interiorul cartierului
Alei pietonale și iluminat public
Transport în comun cu stație în cartier – legătură directă cu București